
Construction d’une maison dans Ile de Ré
Une maison individuelle de 210 m² aux lignes traditionnelles et aux volumes généreux Cette construction de maison sur l’Île de Ré illustre parfaitement l’équilibre entre
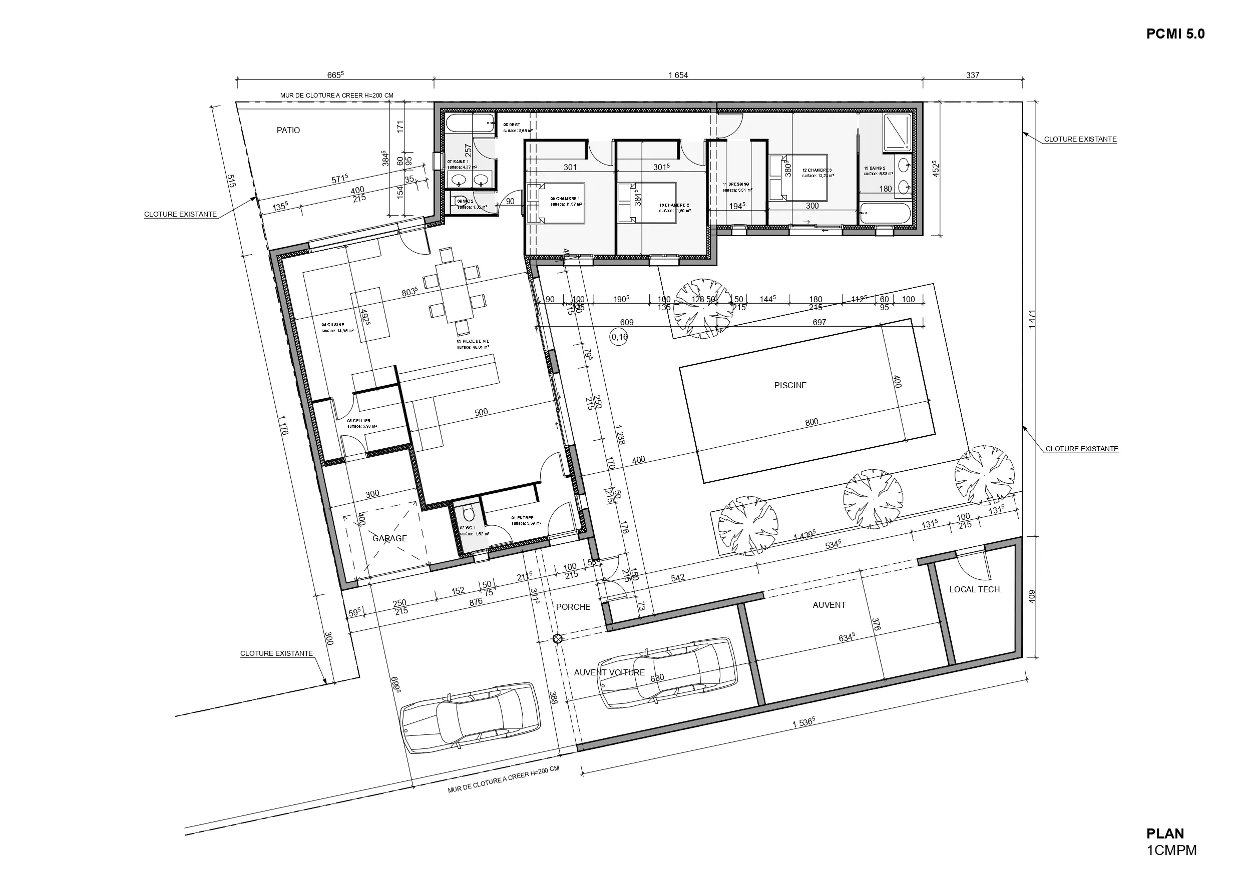
Cette construction d’une maison à Bourgneuf incarne une approche contemporaine du confort, conçue pour offrir des espaces lumineux et fonctionnels. La pièce de vie centrale, largement ouverte sur l’extérieur grâce aux baies vitrées, crée une véritable continuité entre le séjour, la terrasse et l’espace piscine, renforçant la sensation d’espace et de liberté. À l’intérieur, les matériaux sobres, les teintes naturelles et les rangements intégrés soulignent une ambiance moderne et chaleureuse, pensée pour le quotidien. À l’extérieur, l’organisation des volumes et les aménagements paysagers structurent l’ensemble et confèrent au projet une identité élégante et durable.

Une maison individuelle de 210 m² aux lignes traditionnelles et aux volumes généreux Cette construction de maison sur l’Île de Ré illustre parfaitement l’équilibre entre

Adflictabantur posset igitur viribus nunc nunc discrimine adiri neque maiora sine cum Paleas petivere excedunt quicquam ipsa sine adflictabantur firmatum conduntur letali igitur Isauriae sine

À Lagord, cette maison a profité d’une surélévation associée à une rénovation complète des espaces intérieurs. L’intervention a permis de repenser les volumes et d’ajouter